DNG are delighted to present No. 4 Tonduff Close, a stunning family home superbly finished and ideal...
Description & Accommodation
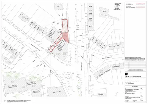
Prime Mixed Use Development
DNG are delighted to launch to market this ready to go development site with Full Planning Permission.
The project involved the demolition of existing structures (approx. 108 sq.m) to make way for a new building. The proposal underwent significant changes during the "Additional Information" stage to better align with the area's Z4 zoning (District Centres).
The Development Potential The site benefits from a Grant of Planning Permission (Ref: 2759/20 / ABP-309044-20) for a contemporary three-storey building. This "Ready-to-Go" project is designed to meet modern urban living standards with: Two High-Profile Ground Floor Commercial Units (ideal for retail, café, or professional services). Four Expansive...
Show MoreFind out how much you will have to pay by using our Stamp Duty Calculator.
Stamp Duty: €3,950
You have to pay stamp duty:1% between €0 and €395,000Your effective stamp duty rate is 1%.





